Строительные подъемники в Екатеринбурге
 Строительные люльки (фасадные подъемники)
                    
                                
                    Строительные люльки (фасадные подъемники)                 
            
        
            
                                    
                         Строительные площадки
                    
                                
                    Строительные площадки                 
            
        
            
                                    
                         Мачтовые подъемники
                    
                                
                    Мачтовые подъемники                 
            
        
            
                                    
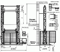
                         Мачтовые строительные платформы реечного типа
                    
                                
                    Мачтовые строительные платформы реечного типа                 
            
        
            
                                    
                         Комплектующие для люлек ZLP
                    
                                
                    Комплектующие для люлек ZLP                 
            
            
                    
                                           
                            Мачтовый подъемник ТЭМЗ ПГД-1. г/п-3000 кг                        
                    	                	                                                                                                                
                                    
                                
                                                    
                                                                
                
            | Высота подъема: | 80 м. | 
| Грузоподъемность: | 3000 кг. | 
                    
                                           
                            Мачтовый подъемник ТЭМЗ с выкатной платформой ПМГ г/п 750 кг                        
                    	                	                                                                                                                
                                    
                                
                                                    
                                                                
                
            | Высота подъема: | 100 м. | 
| Грузоподъемность: | 750 кг. | 
                    
                                           
                            Мачтовый подъемник ТЭМЗ ПМГ г/п-1500 кг                        
                    	                	                                                                                                                
                                    
                                
                                                    
                                                                
                
            | Высота подъема: | 100 м. | 
| Грузоподъемность: | 1500 кг. | 
                    
                                           
                            Мачтовый подъемник ТЭМЗ с выкатной платформой ПМГ г/п 500 кг                        
                    	                	                                                                                                                
                                    
                                
                                                    
                                                                
                
            | Высота подъема: | 100 м. | 
| Грузоподъемность: | 500 кг. | 
                    
                                           
                            Мачтовый подъемник ТЭМЗ ПМГ г/п-1000 кг                        
                    	                	                                                                                                                
                                    
                                
                                                    
                                                                
                
            | Высота подъема: | 100 м. | 
| Грузоподъемность: | 1000 кг. | 
                    
                                           
                            Мачтовый подъемник ТЭМЗ ПМГ г/п-1000 кг платформа с лотком                        
                    	                	                                                                                                                
                                    
                                
                                                    
                                                                
                
            | Высота подъема: | 100 м. | 
| Грузоподъемность: | 1000 кг. | 
                    
                                           
                            Мачтовый подъемник ТЭМЗ ПГД-1. г/п-500 кг                        
                    	                	                                                                                                                
                                    
                                
                                                    
                                                                
                
            | Высота подъема: | 80 м. | 
| Грузоподъемность: | 500 кг. | 
                    
                                           
                            Мачтовый подъемник ТЭМЗ ПГД-1. г/п-1000 кг                        
                    	                	                                                                                                                
                                    
                                
                                                    
                                                                
                
            | Высота подъема: | 80 м. | 
| Грузоподъемность: | 1000 кг. | 
                    
                                           
                            Мачтовый подъемник ТЭМЗ ПГД-1. г/п-2000 кг                        
                    	                	                                                                                                                
                                    
                                
                                                    
                                                                
                
            | Высота подъема: | 80 м. | 
| Грузоподъемность: | 2000 кг. | 
                    
                                           
                            Мачтовая строительная платформа TeaM РА1500                        
                    	                	                                                                                                                
                                    
                                
                                                    
                                                                
                
            | Высота подъема: | до 200 м. | 
| Грузоподъёмность: | 1500 кг. | 
                Компания Промышленник предлагает купить строительные подъемники по низкой цене в Екатеринбурге.
        
        
Большой ассортимент продукции в разделе строительные подъемники: 32 товара. Подробные характеристики, отзывы, документация.
        
Доставка товаров раздела строительные подъемники осуществляется со склада в Екатеринбурге по Свердловской области. Оперативная доставка в следующие города: Нижний Тагил, Каменск-Уральский, Первоуральск, Серов, Новоуральск, Верхняя Пышма, Ревда, Берёзовский, Асбест, Краснотурьинск, Полевской, Лесной, Верхняя Салда, Качканар, Красноуфимск, Ирбит, Реж, Алапаевск, Тавда, Сухой Лог, Богданович, Артёмовский, Заречный, Кушва, Камышлов, Карпинск, Североуральск, Среднеуральск, Невьянск, Красноуральск, Сысерть
	
    Большой ассортимент продукции в разделе строительные подъемники: 32 товара. Подробные характеристики, отзывы, документация.
Доставка товаров раздела строительные подъемники осуществляется со склада в Екатеринбурге по Свердловской области. Оперативная доставка в следующие города: Нижний Тагил, Каменск-Уральский, Первоуральск, Серов, Новоуральск, Верхняя Пышма, Ревда, Берёзовский, Асбест, Краснотурьинск, Полевской, Лесной, Верхняя Салда, Качканар, Красноуфимск, Ирбит, Реж, Алапаевск, Тавда, Сухой Лог, Богданович, Артёмовский, Заречный, Кушва, Камышлов, Карпинск, Североуральск, Среднеуральск, Невьянск, Красноуральск, Сысерть
 
				 
                                        
                                     
                                                
                                             
                                                
                                             
                                        
                                     
                                                
                                             
                                                
                                             
                                        
                                     
                                                
                                             
                                                
                                             
                                        
                                     
                                                
                                             
                                        
                                     
                                                
                                             
                                                
                                             
                                        
                                     
                                                
                                             
                                        
                                     
                                                
                                             
                                                
                                             
                                        
                                     
                                                
                                             
                                                
                                             
                                                
                                             
                                                
                                             
                                                
                                             
                                        
                                     
                                                
                                             
                                                
                                             
                                                
                                             
                                        
                                     
                                                
                                             
                                                
                                             
                                                
                                             
                                                
                                             
                                                
                                             
                                        
                                     
                                                
                                             
                                                
                                             
                                                
                                             
                                                
                                             
                                                
                                             
                                        
                                     
                                                
                                             
                                                
                                             
                                                
                                             
                                                
                                             
                                                
                                             
                                        
                                     
                                                
                                             
                                                
                                             
                                                
                                             
                                                
                                             
                                                
                                             
                                        
                                     
                                                
                                             
                                                
                                             
                                                
                                             
                                                
                                             
                                                
                                             
                                        
                                     
                                                
                                             
                                        
                                     
                                                
                                             
                                        
                                     
                                                
                                             
                                        
                                     
                                                
                                             
                                                
                                             
                                                
                                            